Podłączenie kombinowane umożliwia zasilanie grzejnika przez instalację centralnego ogrzewania, jak i wykorzystanie elektrycznej grzałki do samodzielnego ogrzewania poza sezonem grzewczym. Zalecamy zastosowanie grzałki o takiej samej lub podobnej mocy w zależności od specyfikacji grzejnika.
W przypadku, że urządzenie posiada podłączenie środkowe, podłącza się dwoma sposobami, w zależności od konstrukcji grzejnika.
1. Grzałka instaluje się przez zawór przyłączeniowy - w tym przypadku grzejnik podłącza się za pomocą zestawu przyłączeniowego zespolonego typu COMBI.
2. Grzałka instaluje się prosto do konstrukcji urządzenia, poza zawór przyłaczeniowy - grzejnik podłącza się zwykłym zespolonym zestawem przyłączeniowym.
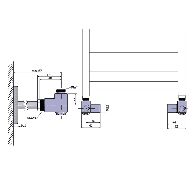
W przypadku podłączenia bocznego zawsze należy stosować zawór typu COMBI. Istnieje możliwość zastosowania zaworu manualnego lub zaworu z głowicą termostatyczną.
Zawór manualny: Głowica sterująca zaworu może być zainstalowana po lewej/prawej stronie niezależnie od miejsca doprowadzenia ciepłej wody. Temperatura reguluje się manualnie.
Zawór z głowicą termostatyczną: Zintegrowany termostat utrzymuje ustawioną temperaturę wewnątrz urządzenia. Zawór termostatyczny musi znajdować się na wlocie ciepłej wody.
Oferowane przez nas zawory przyłączeniowe dostarczane są w komplecie ze złączką zaciskową do najczęściej stosowanych rur (Ø15 mm Cu i Ø16 mm Alupex), nie trzeba dokupować dalszych akcesoriów. Do zakrycia podłączenia do rur dopływowych i otworów w ścianie zalecamy zastosowanie rozetek maskujących.
Opis
Zestaw zawiera złączki do Cu (Ø15 mm ) i Alupex (Ø16x2 mm), nie trzeba kupować następnych akcesoriów, aby podłączyć grzejnik.
Zalecamy dokupienie rozety maskującej podłączenie.
Zawór zwrotny jest ukryty pod ozdobną maskownicą. Zamyka się go za pomocą klucza heksagonalnego. Nie służy do regulacji temperatury ale do zamknięcia instalacji naprz. w przypadku demontażu grzejnika, bez konieczności spuszczania cieczy.




















































































































